| 価格 | 5,180万円 ![]() |
||||
|---|---|---|---|---|---|
| 所在地 | 埼玉県川口市鳩ヶ谷本町3丁目
この地域周辺の物件を見る |
土地面積 | 87.98m² (26.61坪) | 建物面積 | 105.57u |
| 築年月 | 2026年4月築 | 間取り | 3LDK (-) | ||
| 交通 |
埼玉高速鉄道 鳩ヶ谷 徒歩9分
埼玉高速鉄道 新井宿 徒歩18分 |
||||
電話をかける(携帯・PHS可)
0120-444-702
「ホームページを見た」とお伝え下さい。
お問い合わせ番号をお伝えください
RHS-990990543
| 特徴 |
|
|---|---|
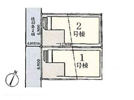
| セールスコメント | 法第22条区域 宅地造成等工事規制区域 景観法 用途地域:一部第1種住居地域(建60%/容160%) 容積率:前面道路幅員制限 建物面積:1階車庫面積約7.45平米含 |
| 採光面 | - | 構造/階数 | 木造/地上2階建 |
|---|---|---|---|
| 建ぺい率 | 80(%) | 容積率 | 240(%) |
| 駐車場 | 有 | 現況/引渡し | -/2026年5月上旬 |
| 土地権利 | 所有権 | 私道負担面積 | - |
| 接道状況 | 接道: 南西 公道 道路幅: 3.3m | 用途地域 | 商業地域
|
| セットバック | なし | 法令上の制限 | - |
| 地目 | 宅地 | 地勢 | |
| 建築確認番号 | 第25UDI1W建09000号 | 都市計画 | 市街化区域 |
| 取引態様 | 仲介 | ||
| 情報更新日 | 2026年01月21日 | 次回更新日 | 2026年02月04日 |
| 小学校区 | () |
中学校区 | () |
|---|
電話をかける(携帯・PHS可)
0120-444-702
「ホームページを見た」とお伝え下さい。
お問い合わせ番号をお伝えください
RHS-990990543
| 価格 | 万円 | ||
|---|---|---|---|
| 年利率 | % |
||
| ボーナス払い | 返済年数 | ||
| 頭金 | 直接入力する | 万円 | |

毎月のご返済額 |
ボーナス(×年2回) |
物件価格5,180万円 |
![]() |
![]() |
川口市鳩ヶ谷本町3丁目
5180万円 |
電話でお問い合わせ
エムイーPLUS城東
|
電話をかける 0120-444-702 ※「ホームページを見た」とお伝えください。 |
お問い合わせ番号をお伝えください RHS-990990543 |
|---|
-