| 価格 | 3,299万円値下がり ![]() |
||||
|---|---|---|---|---|---|
| 所在地 | 埼玉県蓮田市閏戸
この地域周辺の物件を見る |
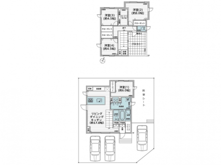
土地面積 | 167m² (50.52坪) | 建物面積 | 95.49u |
| 築年月 | 2021年8月築 | 間取り | 4LDK (-) | ||
| 交通 |
湘南新宿ライン宇須 蓮田 上貝塚 バス17分 停歩3分
湘南新宿ライン宇須 白岡 徒歩42分 |
||||
電話をかける(携帯・PHS可)
0120-444-702
「ホームページを見た」とお伝え下さい。
お問い合わせ番号をお伝えください
RHS-990994901
| 特徴 |
|
|---|---|
| セールスコメント | 都市計画:市街化調整区域(建築許可:開発許可等による分譲地内) |
| 採光面 | - | 構造/階数 | 木造/地上2階建 |
|---|---|---|---|
| 建ぺい率 | 60(%) | 容積率 | 200(%) |
| 駐車場 | 有 | 現況/引渡し | 空家/即時 |
| 土地権利 | 所有権 | 私道負担面積 | - |
| 接道状況 | 接道: 南 9m 公道 道路幅: 6.1m 接道: 東 12m 公道 道路幅: 4.1m |
用途地域 | 指定なし
|
| セットバック | なし | 法令上の制限 | - |
| 地目 | 宅地 | 地勢 | 平坦 |
| 建築確認番号 | 都市計画 | 市街化調整区域 | |
| 取引態様 | 仲介 | ||
| 情報更新日 | 2026年05月17日 | 次回更新日 | 2026年05月31日 |
| 小学校区 | () |
中学校区 | () |
|---|
電話をかける(携帯・PHS可)
0120-444-702
「ホームページを見た」とお伝え下さい。
お問い合わせ番号をお伝えください
RHS-990994901
| 価格 | 万円 | ||
|---|---|---|---|
| 年利率 | % |
||
| ボーナス払い | 返済年数 | ||
| 頭金 | 直接入力する | 万円 | |

毎月のご返済額 |
ボーナス(×年2回) |
物件価格3,299万円 |
電話でお問い合わせ
エムイーPLUS城東
|
電話をかける 0120-444-702 ※「ホームページを見た」とお伝えください。 |
お問い合わせ番号をお伝えください RHS-990994901 |
|---|
-