| 価格 | 3,890万円値下がり ![]() |
||||
|---|---|---|---|---|---|
| 所在地 | 埼玉県三郷市早稲田6丁目
この地域周辺の物件を見る |
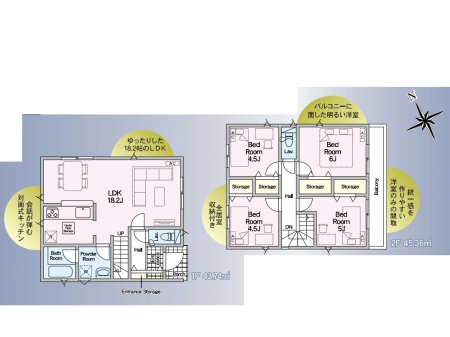
土地面積 | 130.62m² (39.51坪) | 建物面積 | 89.1u |
| 築年月 | 2026年2月築 | 間取り | 4LDK (-) | ||
| 交通 |
JR武蔵野線 新三郷 徒歩22分
JR武蔵野線 三郷 丹後郵便局前 バス7分 停歩6分 |
||||
電話をかける(携帯・PHS可)
0120-444-702
「ホームページを見た」とお伝え下さい。
お問い合わせ番号をお伝えください
RHS-990999574
| 特徴 |
|
|---|---|
| セールスコメント |
| 採光面 | - | 構造/階数 | 木造/地上2階建 |
|---|---|---|---|
| 建ぺい率 | 60(%) | 容積率 | 200(%) |
| 駐車場 | 有 | 現況/引渡し | 空家/即時 |
| 土地権利 | 所有権 | 私道負担面積 | - |
| 接道状況 | 接道: 東 5.7m 公道 道路幅: 10.9m | 用途地域 | 第一種中高層住居専用地域
|
| セットバック | なし | 法令上の制限 | - |
| 地目 | 宅地 | 地勢 | 平坦 |
| 建築確認番号 | 第HPA-25-13558-1号 | 都市計画 | 市街化区域 |
| 取引態様 | 仲介 | ||
| 情報更新日 | 2026年03月10日 | 次回更新日 | 2026年03月24日 |
| 小学校区 | () |
中学校区 | () |
|---|
電話をかける(携帯・PHS可)
0120-444-702
「ホームページを見た」とお伝え下さい。
お問い合わせ番号をお伝えください
RHS-990999574
| 価格 | 万円 | ||
|---|---|---|---|
| 年利率 | % |
||
| ボーナス払い | 返済年数 | ||
| 頭金 | 直接入力する | 万円 | |

毎月のご返済額 |
ボーナス(×年2回) |
物件価格3,890万円 |
![]() |
![]() |
三郷市早稲田6丁目
3890万円〜4490万円 |
電話でお問い合わせ
エムイーPLUS城東
|
電話をかける 0120-444-702 ※「ホームページを見た」とお伝えください。 |
お問い合わせ番号をお伝えください RHS-990999574 |
|---|
-