| 価格 | 4,480万円 ![]() |
||||
|---|---|---|---|---|---|
| 所在地 | 埼玉県蕨市北町4丁目
この地域周辺の物件を見る |
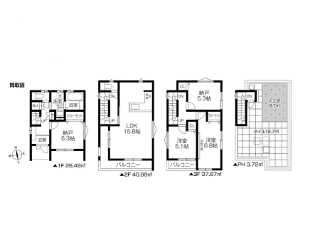
土地面積 | 69.42m² (21坪) | 建物面積 | 108.87u |
| 築年月 | 2026年6月築 | 間取り | 2SLDK (S5.3/LDK15.8/洋室6.8/洋室5.1/S5.3) | ||
| 交通 |
JR京浜東北・根岸線 蕨 徒歩20分
JR埼京線 北戸田 徒歩22分 |
||||
電話をかける(携帯・PHS可)
0120-444-702
「ホームページを見た」とお伝え下さい。
お問い合わせ番号をお伝えください
RHS-991003404
| 特徴 |
|
|---|---|
| セールスコメント |
| 採光面 | - | 構造/階数 | 木造/地上3階建 |
|---|---|---|---|
| 建ぺい率 | 60(%) | 容積率 | 160(%) |
| 駐車場 | 有 | 現況/引渡し | -/2026年7月下旬 |
| 土地権利 | 所有権 | 私道負担面積 | - |
| 接道状況 | 接道: 北西 2m 私道 道路幅: 4m | 用途地域 | 第一種住居地域
|
| セットバック | なし | 法令上の制限 | 土地面積/69.42平米他に私道部分8.26平米別途 建物面積/108.87平米申請加算部分7.45平米 |
| 地目 | 宅地 | 地勢 | |
| 建築確認番号 | 第SJK-KX255635590号 | 都市計画 | 市街化区域 |
| 取引態様 | 仲介 | ||
| 情報更新日 | 2026年05月12日 | 次回更新日 | 2026年05月26日 |
| 小学校区 | () |
中学校区 | () |
|---|
電話をかける(携帯・PHS可)
0120-444-702
「ホームページを見た」とお伝え下さい。
お問い合わせ番号をお伝えください
RHS-991003404
| 価格 | 万円 | ||
|---|---|---|---|
| 年利率 | % |
||
| ボーナス払い | 返済年数 | ||
| 頭金 | 直接入力する | 万円 | |

毎月のご返済額 |
ボーナス(×年2回) |
物件価格4,480万円 |
電話でお問い合わせ
エムイーPLUS城東
|
電話をかける 0120-444-702 ※「ホームページを見た」とお伝えください。 |
お問い合わせ番号をお伝えください RHS-991003404 |
|---|
-