| 価格 | 5,180万円 ![]() |
||||
|---|---|---|---|---|---|
| 所在地 | 千葉県船橋市藤原6丁目
この地域周辺の物件を見る |
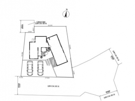
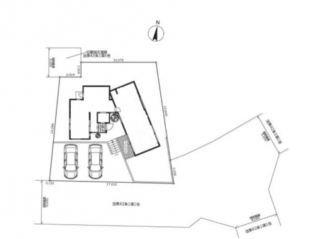
土地面積 | 251.25m² (76坪) | 建物面積 | 115.23u |
| 築年月 | 2026年10月築 | 間取り | 4LDK (-) | ||
| 交通 |
東武野田線 馬込沢 徒歩16分
JR武蔵野線 船橋法典 徒歩35分 |
||||
電話をかける(携帯・PHS可)
0120-444-702
「ホームページを見た」とお伝え下さい。
お問い合わせ番号をお伝えください
RHS-991004009
| 特徴 |
|
|---|---|
| セールスコメント |
| 採光面 | - | 構造/階数 | 木造/地上2階建 |
|---|---|---|---|
| 建ぺい率 | 40(%) | 容積率 | 80(%) |
| 駐車場 | 有 | 現況/引渡し | -/2026年11月上旬 |
| 土地権利 | 所有権 | 私道負担面積 | - |
| 接道状況 | 接道: 南 公道 道路幅: 6m 接道: 北西 私道 道路幅: 4m |
用途地域 | 第一種低層住居専用地域
|
| セットバック | なし | 法令上の制限 | - |
| 地目 | 宅地 | 地勢 | |
| 建築確認番号 | 第25UDI1C建08080号 | 都市計画 | 市街化区域 |
| 取引態様 | 仲介 | ||
| 情報更新日 | 2026年05月17日 | 次回更新日 | 2026年05月31日 |
| 小学校区 | () |
中学校区 | () |
|---|
電話をかける(携帯・PHS可)
0120-444-702
「ホームページを見た」とお伝え下さい。
お問い合わせ番号をお伝えください
RHS-991004009
| 価格 | 万円 | ||
|---|---|---|---|
| 年利率 | % |
||
| ボーナス払い | 返済年数 | ||
| 頭金 | 直接入力する | 万円 | |

毎月のご返済額 |
ボーナス(×年2回) |
物件価格5,180万円 |
電話でお問い合わせ
エムイーPLUS城東
|
電話をかける 0120-444-702 ※「ホームページを見た」とお伝えください。 |
お問い合わせ番号をお伝えください RHS-991004009 |
|---|
-